Guide Price £100,000 - Sold STC


  • Building Plot
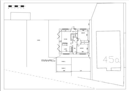
  • Planning Permission Granted For A Two Bedroom Detached Bungalow
  • Sought After Location
  • Situated On the Flat
  • Parking For Two Cars
  • Priced To Sell

The building plot with planning permission for a two bedroom detached bungalow with two off road parking spaces is situated in one of the most desirable areas of Rugby, Hillmorton.

The planning reference for the approved planning permission is R17/0722 and further information can be found via the following URL address:

http://www.planningportal.rugby.gov.uk/progress.asp?AltRef=R17/0722&ApplicationNumber=&AddressPrefix=&Postcode=cv22+5ld&CaseOfficer=&ParishName=&AreaTeam=&WardMember=&Consultant=&DateDecidedStart=&DateDecidedEnd=&Locality=&AgentName=&ApplicantName=&ShowDecided=&DecisionDescription=&DecisionLevel=&Sort1=FullAddressPrefix&Sort2=DateReceived+DESC&Submit=Search

Ready to go for any potential developer or home owner that is looking to build a bungalow to their own specifications and style.

If you need any advice about building costs or the plans then please don't hesitate to call us. We can get you in touch with well respected builders/project managers that will help you through every step of the process.



Business Rates
Rugby Borough Council

Notice
Please note we have not tested any apparatus, fixtures, fittings, or services. Interested parties must undertake their own investigation into the working order of these items. All measurements are approximate and photographs provided for guidance only.

Utility Supply Type
Electric Unknown
Gas Unknown
Water Unknown
Sewerage Unknown
Broadband Unknown
Telephone Unknown

Other Items Description
Heating Not Specified
Garden/Outside Space No
Parking No
Garage No

Broadband Coverage Highest Available Download Speed Highest Available Upload Speed
Standard 9 Mbps 0.9 Mbps
Superfast 49 Mbps 9 Mbps
Ultrafast 1800 Mbps 1000 Mbps

Mobile Coverage Indoor Voice Indoor Data Outdoor Voice Outdoor Data
EE Likely Likely Enhanced Enhanced
Three Likely Likely Enhanced Enhanced
O2 Likely Likely Enhanced Enhanced
Vodafone Likely Likely Enhanced Enhanced

Broadband and Mobile coverage information supplied by Ofcom.


marker icon